リフォーム施工事例【詳細】
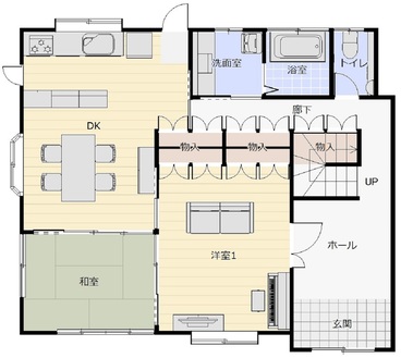
室内の段差解消や壁への断熱材充填など、より快適な住まいにするためにリフォームを行いました。木の質感にこだわったキッチンや腰板を採用し、家具と一体感のある落ち着いたお部屋に仕上がりました。
水廻り設備も清掃性や機能性・デザイン性の高い商品へと取替え、ご家族皆様が使いやすい空間になりました。
リフォームDATA
- 工事内容
- LDK・水廻り・内装・玄関ドア改修
- 工事金額
- 750万円
- 工期
- 40日間
- 築年数
- 30年
- 建物構造
- 戸建
- 家族構成
- 50代ご夫婦+2名
before

after

before

after






